Omschrijving
Schitterende karakteristieke twee-onder-een-kap woning in jaren ’30 stijl met garage, parkeergelegenheid op eigen terrein en een enorme achtertuin, gelegen in de rustige en prachtige wijk “Portlandse Hoek” in Rhoon, nabij winkels, openbaar vervoer, scholen, kinderopvang, gezondheidscentra, uitvalswegen en een uitgestrekt natuurgebied. Door de aanleg van de nieuwe verbindingsweg bent u binnen 5 minuten in Rotterdam!
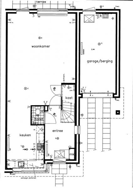
Ruime hal (4,20m. x 2,35m.) met garderobehoek en trapopgang. Via de hal is de woonkamer en het geheel betegelde toilet (1,44m. x 1,00m.) met fonteintje, te bereiken.
De prachtige zeer royale woonkamer (7,23m. x 5,40m.) is voorzien van een epoxyvloer met vloerverwarming en een bergkast. Vanuit de woonkamer kunt u naar de met schuttingen volledig afgesloten achtertuin van 25 x 12 meter. U heeft hier middels een loopdeur toegang tot de garage. De garage (6,30m. x 2,83m.) is aan de voorzijde te bereiken middels een elektrisch bedienbare roldeur. De tuin is te bereiken via een zij- en achterpad.
De moderne luxe hoogglans keuken (4,83m. x 2,95m./1,88m.) met natuurstenen aanrechtbladen is van alle gemakken voorzien: een vaatwasser, inductiekookplaat, RVS afzuigkap, combimagnetron, inbouwkoelkast- en vriezer (allen van het merk Whirlpool).
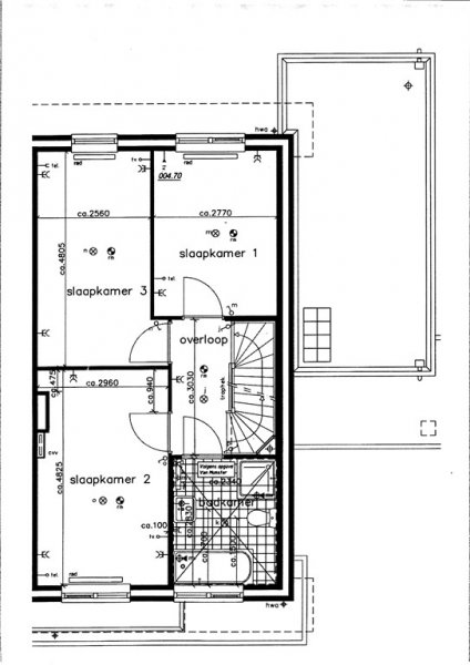
De eerste etage is eveneens geheel voorzien van een epoxyvloer. Via de ruime overloop (3,03m. x 2,34m.) heeft u toegang tot de masterbedroom (4,83m. x 2,96m.), gelegen aan de voorzijde van de woning. Aan de achterzijde zijn twee slaapkamers gelegen van 2,56m. x 4,81m. en 2,77m. x 3,91.
De moderne geheel betegelde badkamer (2,83m. x 2,34m.) is voorzien van een ligbad, douchecabine, badkamermeubel en 2e toilet.
Op de tweede etage bevindt zich een open zolder (5,40m. x 7,71m.), welke tevens geheel voorzien is van een laminaatvloer. Hier bevinden zich de wasmachineaansluiting en de cv-combiketel.
Kortom een prachtig robuust woonhuis met veel ruimte in en rond de woning in een magnifieke wijk!
Bijzonderheden
- de woning is gelegen op 370m² eigen grond!!!
- parkeergelegenheid op eigen terrein
- verwarming geschiedt via een cv-combiketel
- GIW-certificaat aanwezig
Kenmerken
- Prijs:
- € 395.000,- k.k.
- Postcode:
- 3162XM
- Woningtype:
- 2 Onder 1 Kap
- Soort bouw:
- bestaand
- Tuin:
- Ja, noorden
- Garage:
- Ja
- Kamers:
- 5
- Slaapkamers:
- 4
- Woonoppervlakte:
- 153m²
- Perceeloppervlakte:
- 370m²
- Inhoud:
- 535m³
- Bouwperiode:
- 2010-2010
Interesse in deze woning?
Voor al uw vragen kunt u ons bellen op
06-53671764 of stuur een mail naar info@mom-makelaardij.nl
























